MOCA Re-imagined

UNIVERSITY OF SOUTHERN CALIFORNIA | FALL 2017 | Fourth Year First Semester

PROFESSOR GEOFFREY VON OEYEN

This project was developed as a merged studio collaboration between the USC School of Architecture and ArtCenter College of Design. The proposal explores ways to expand and enhance the museum experience at MOCA while remaining respectful of Arata Isozaki’s existing architecture and the institution’s core values.

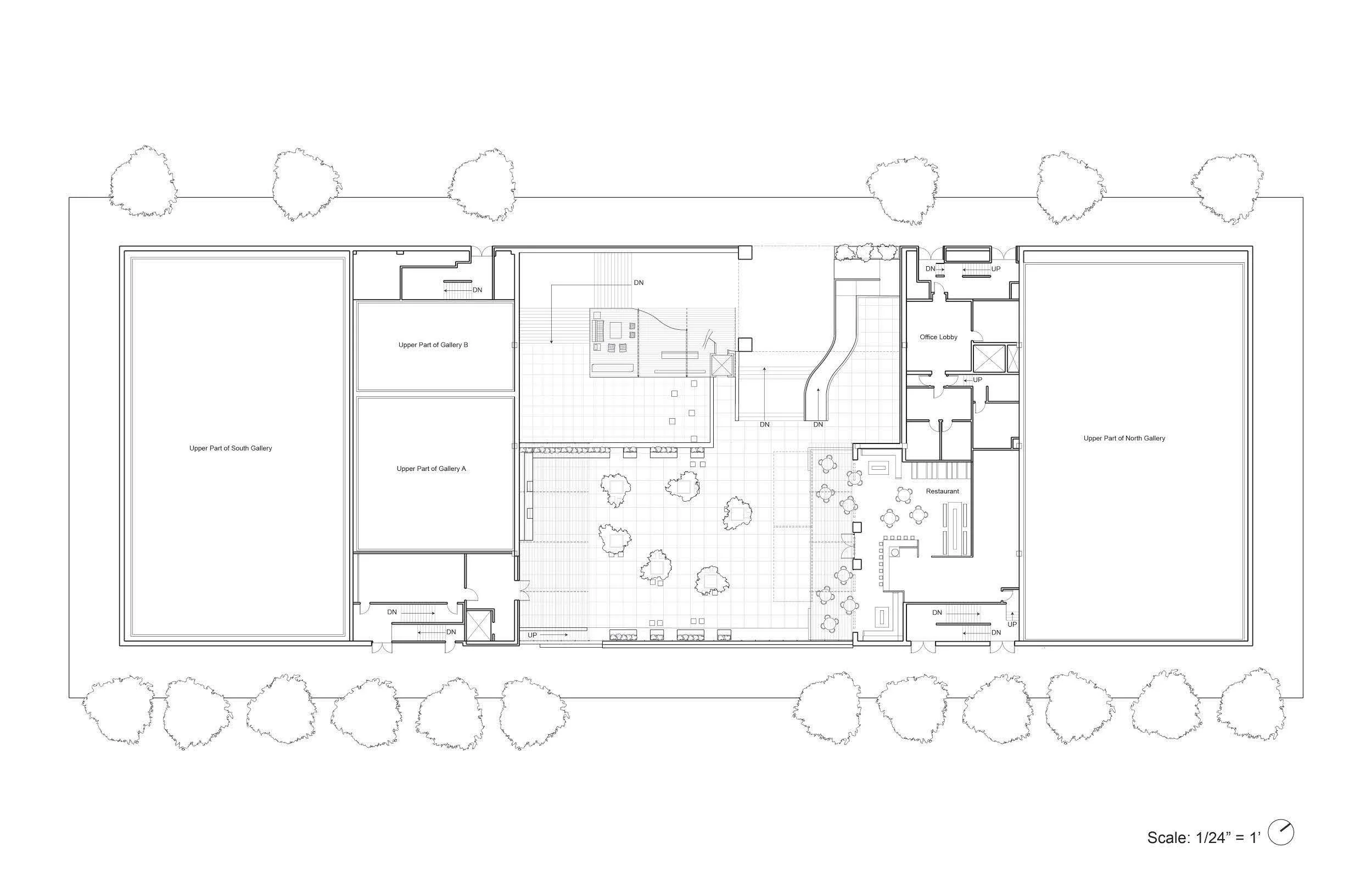
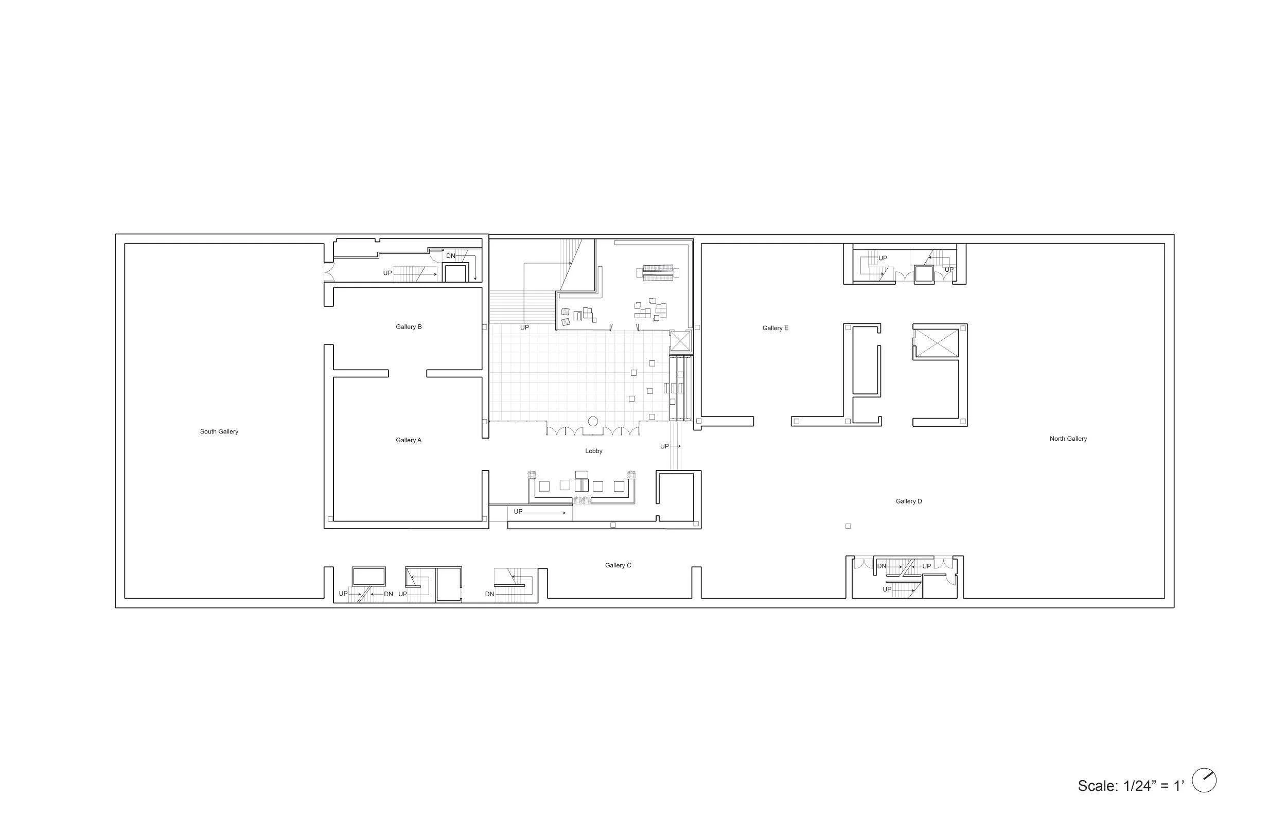
Located along Grand Avenue, the project responds to MOCA’s role within a dense cultural and civic context. The design focuses on creating a sequence of indoor and outdoor spaces that support gathering, art engagement, and everyday use, extending the museum experience beyond the galleries and into the public realm. New spaces for events, retail, and dining are integrated to strengthen connections between the museum, the plaza, and the surrounding neighborhood.

The work was informed by site observation, interviews with museum staff, visitors, and stakeholders, and collective research conducted by a team of 26 students. Together, these efforts helped identify opportunities to activate the campus while allowing for flexibility, evolving programming, and multiple types of visitor experiences.

Acknowledgments:

ART CENTER SCHOOL OF DESIGN

STUDENTS

  • Vanessa Shababzadeh

  • Haeum Kim

  • Arotin Hartounian

  • Yena Song

  • Akshay Agrawal

  • Fengjie An

  • Yeling Guo

  • Ho Kit Gregory Chan

  • Kasey Chen

  • Chufan Huang

  • Lingpui Lei

  • Jessica Nares

  • Izabella Sanchez

  • Zinc Wang

  • Carmen Chamorro

  • Luis Zepeda

FACULTY

  • Chiarra Ferrari

  • Jeff Higash

USC SCHOOL OF ARCHITECTURE

STUDENTS

  • Andreina De Abreu

  • Aroutin Alexandry

  • Thomas Gin

  • Celine Wang

  • Hung Ming Chen

  • Zixiao Huang

  • Nick Miuccio

  • Kaitlyn Torahs

  • Sarah Castro

  • Jessi Jacobowitz

  • Andrew Fabry

FACULTY

  • Geoffrey von Oeyen

SPONSORS

  • MADWORKSHOP

  • MOCA (Museum of Contemporary Art)

  • Buddy Bleckley (PHOTOGRPAHY)

Next
Next

The Towering Sower